Piso especial en Muruetatorre

  • 347.000€
¡Echa un vistazo!
Muruetatorre 3C Durango
  • 4
  • Habitaciones
  • 2
  • Baños
  • 1975
  • Año de construcción
  • 104
¡Echa un vistazo!
Piso especial en Muruetatorre
Muruetatorre 3C Durango
  • 347.000€

Descripción

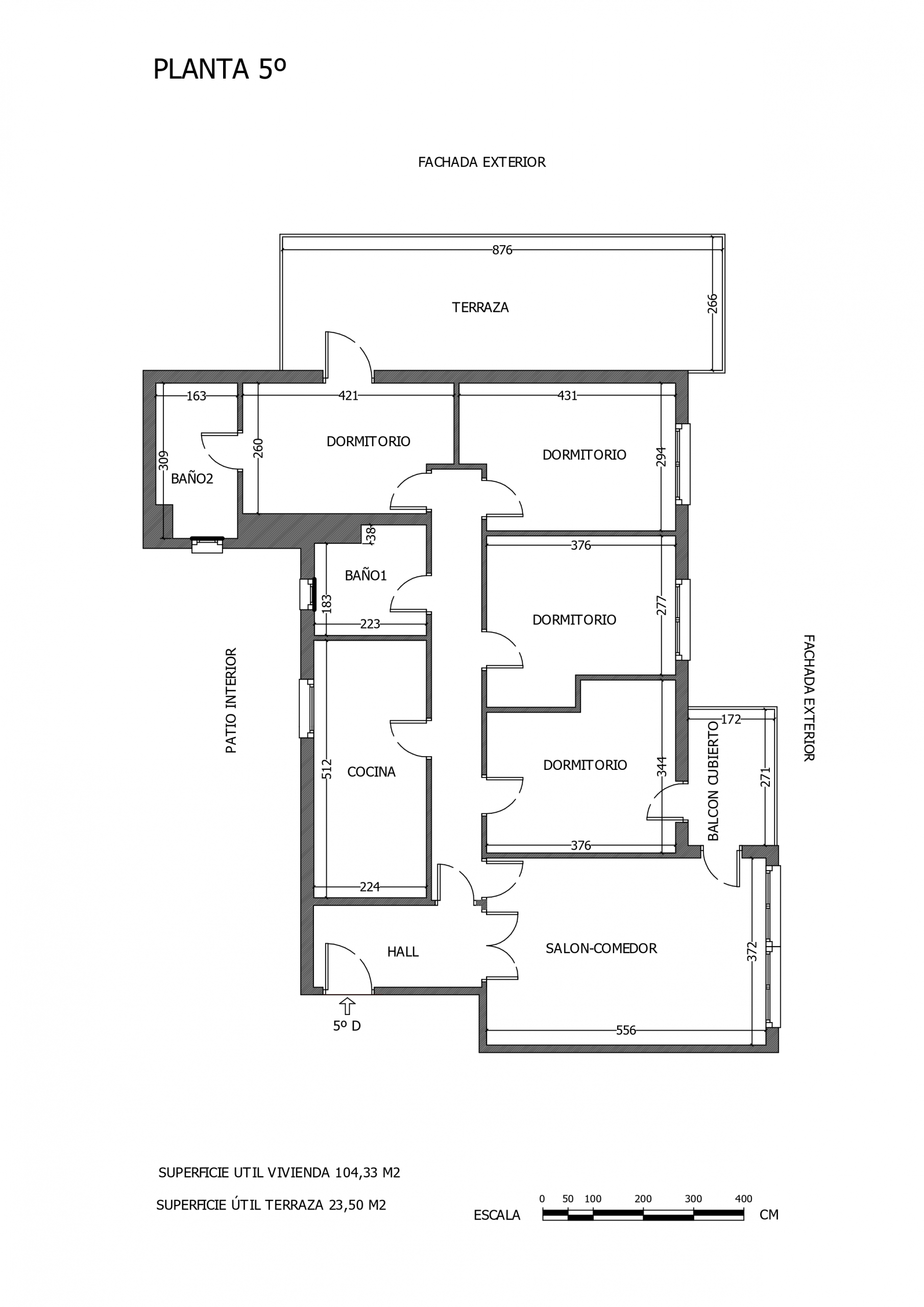
Vivienda en barrio Muruetatorre, compuesta por salón, cocina, 4 dormitorios y dos terrazas, 104,33 m2 útiles de vivienda, 23,50 m2 de terraza.
Edificio del año 1975 en el que se realizado recientemente una reforma integral de fachadas, tejado y terrazas y en el que se ha pintado el suelo, paredes y techos de garajes.
Vivienda para reforma integral.
Sistema central con contador individual para agua caliente y calefacción.
Opcional:
Parcela de garaje abierta número 83, situada en la primera planta de sótano del mismo edificio, de 11,80 m2 útiles y con trastero anejo en parte trasera del mismo de 7,17 m2 útiles, por 19.700€.
Parcela de garaje abierta, situada en la primera planta de sótano del mismo edificio, señalada con el número 22, de 10,64 m2 útiles, por 22.500€.

Certificado de eficiencia energética

etiqueta - 2026-03-12T121411.381

Detalles

  • Precio: 347.000€
  • Tamaño de propiedad: 104
  • Habitaciones: 4
  • Baños: 2
  • Año de construcción: 1975

Contacta con nosotros

Ver anuncio

Si quieres saber más sobre este inmueble contáctanos

Inmuebles similares

Comparar listados

Comparar
Kbiacontrolweb
  • Kbiacontrolweb